Home News Renovierung Kontakt Baubeschreibung

Flair des Südens

Urlaub Zuhause.
   

Dieses Haus verlassen Sie nur ungern. Residieren Sie im Turmzimmer und lassen Sie Ihren Blick schweifen. Dieses Haus ist einfach etwas Besonderes.

   
Dachneigung 20°
     
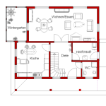
Wohnfläche ca. 161 m²
EG ca. 76 m²
OG ca. 69 m²
DG ca. 16 m²
     
Ansicht Grundriss Erdgeschoss Grundriss Obergeschoss Grundriss Dachgeschoss

Impressum